8721 Del Vista
St. Louis, MO 63126Map/Directions
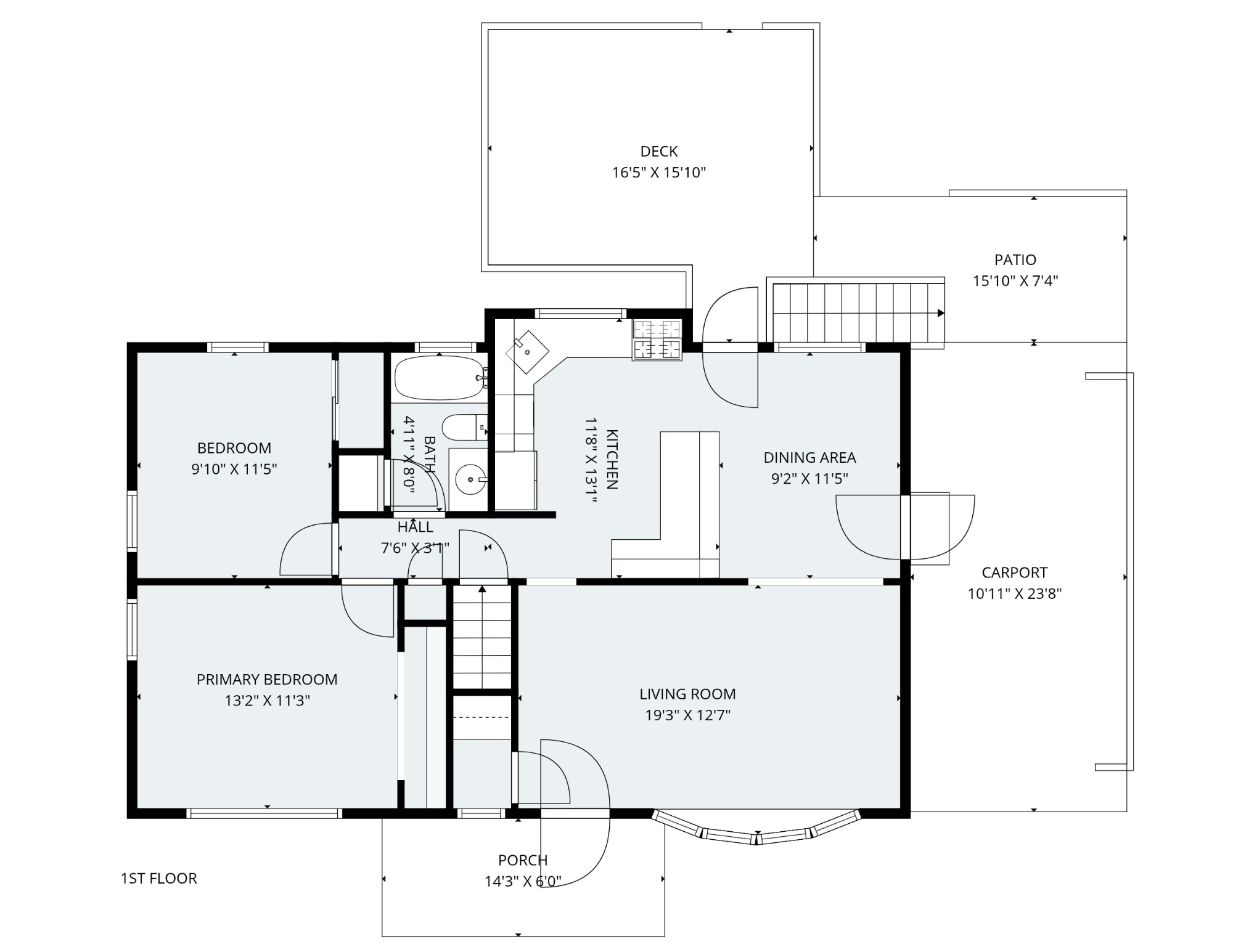
Brick ranch home in OUTSTANDING Crestwood location offers a quiet neighborhood, close to many amenities. This 2 bed/2 bath home features hardwoods throughout main level. Living room has large picture window bringing an abundance of natural light to the space. The dining area is open to kitchen by the breakfast bar. Kitchen has granite counters and stainless appliances including built-in microwave. From the kitchen, access the deck for grilling and enjoying your yard that backs to church ball fields. Down the hall are two bedrooms and full bath round. The partially finished lower level walk-out adds nice living space including a rec room for movie nights, and a bonus room/sleeping area with a full bath. This home is Just a 10 minute walk to Crestwood Park, a few more to Long Elementary in Lindbergh School District. Dining and shopping all just a short 2-3 minute drive.
Neighborhood Highlights
- 2025 Best Suburbs to Buy a House in Missouri, according to Niche.com
- Construction is underway (broke ground May 2025) for a brand-new, 42,000 sq ft Crestwood Community Center — a $21.3M project funded by voter-approved Proposition A (April 2024). It will include a large gym, elevated indoor track, fitness/weight rooms, dance/yoga studios, multipurpose rooms, and more.

















































































































